Inspection details
- Sunday7December
- Sunday14December
This family-affordable Brick and Tile home of 190m2 sitting on a level and freehold site of 734m2 ( Title allows for subdivision) is waiting for YOU!
Our Vendors who have loved living here for the last 23 years are retiring out of Auckland to be with family
With space everywhere you look, all that's required is for you to bring your taste and create your happy place.
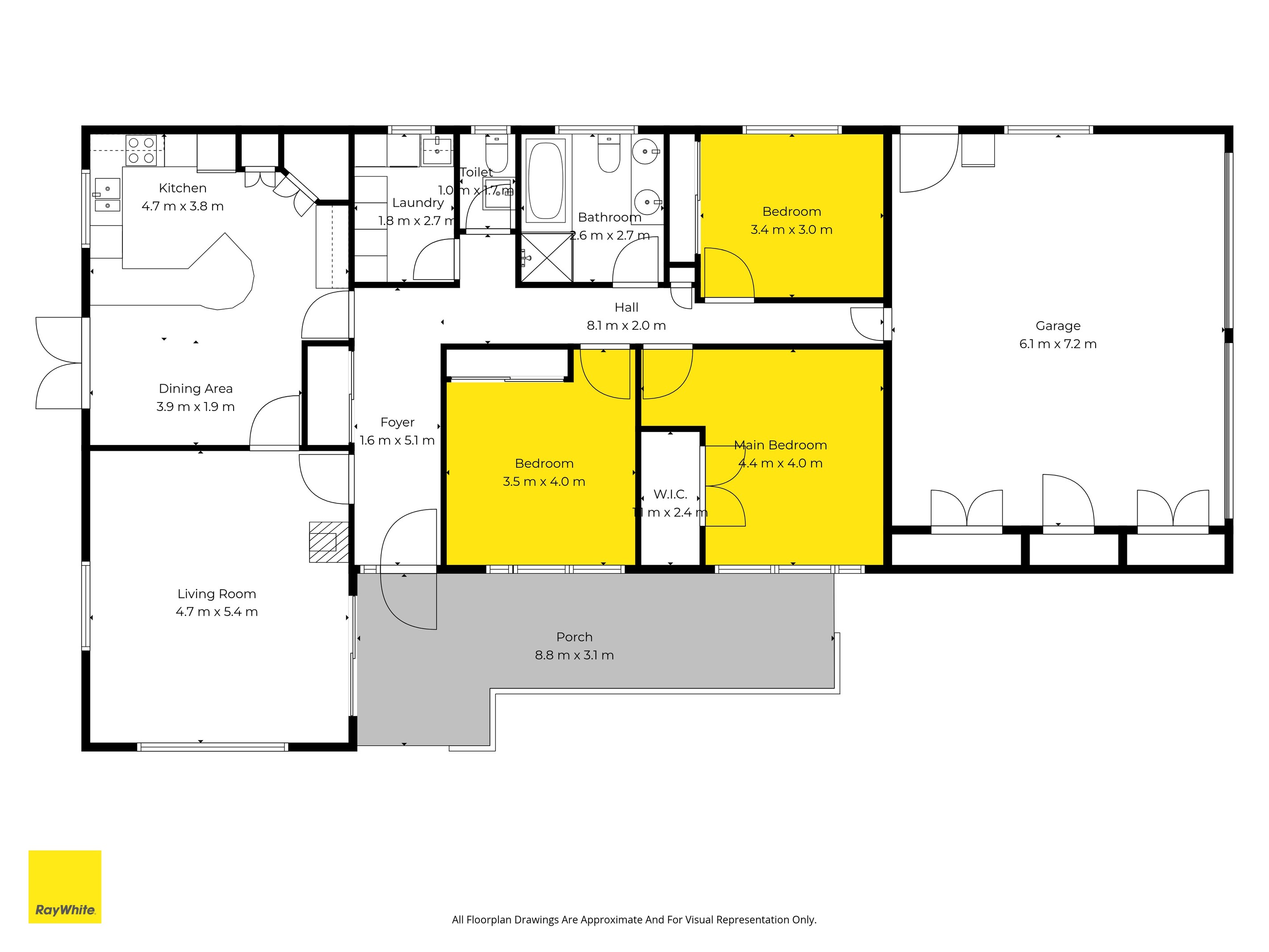
Enjoy a separate lounge with cosy Kent style fire for winter, very spacious kitchen and dining area with doors to the back patio for family BBQs, living and entertaining will be a breeze. The rear garden is fully fenced for children a pets that you can keep your eyes on from the kitchen window.
The 3 bedrooms are again roomy. (There is potential to move the laundry to the garage and create a study / bedroom 4. An ensuite could be created using some of the garage space.)
There is a family bathroom with a bath and shower and the home has 2 toilets. There is a dedicated laundry room and a larger than usual double garage with internal access.
Solidly built in the 1970's, your can easily add value here!
Make no mistake - THIS HOME WILL BE SOLD!!
Open Homes Sat/Sun 1.00-1.30
Disclaimer - This property is being sold without a price and therefore a price guide can not be provided. The website may have filtered the property into a price bracket for website functionality purposes. All prospective purchasers shall complete their own due diligence, seek legal and expert advice, and satisfy themselves with respect to information supplied during the marketing of this property, including but not limited to: the floor and land sizes, boundary lines, underground services, along with any scheme plans or consents.
- Gas Hot Water
- Standard Kitchen
- Open Plan Dining
- Combined Bathroom/s
- Separate WC/s
- Separate Lounge/Dining
- Electric Stove
- Good Interior Condition
- Off Street Parking
- Double Garage
- Internal Access Garage
- Fully Fenced
- Concrete Tile Roof
- Very Good Exterior Condition
- Easterly, Westerly and Northerly Aspects
- Park Views
- City Sewage
- Town Water
- Street Frontage
- Level With Road
- Public Transport Nearby
- In Street Gas
- Shops Nearby
See all features
- Garage Door Opener
- Fixed Floor Coverings
- Light Fittings
- Burglar Alarm
- Blinds
- Garden Shed
- TV Aerial
- Extractor Fan
- Heated Towel Rail
- Waste Disposal Unit
- Cooktop Oven
- Dishwasher
- Rangehood
See all chattels
MKU46895
190m²
733m² / 0.18 acres
3
1
Additional Information:
More InfoAgents
- Loading...
- Loading...
