Deadline sale details
- Deadline Sale16December
Are you interested in inspecting this property?
Get in touch to request an inspection.
House for Sale in Pukekohe
Freehold Title, Renovate, Detonate or Develop
- 2 Beds
- 1 Bath
- 2 Cars
Additional Information:
More InfoChange of plans! Our owner needs to sell before the end of the year.
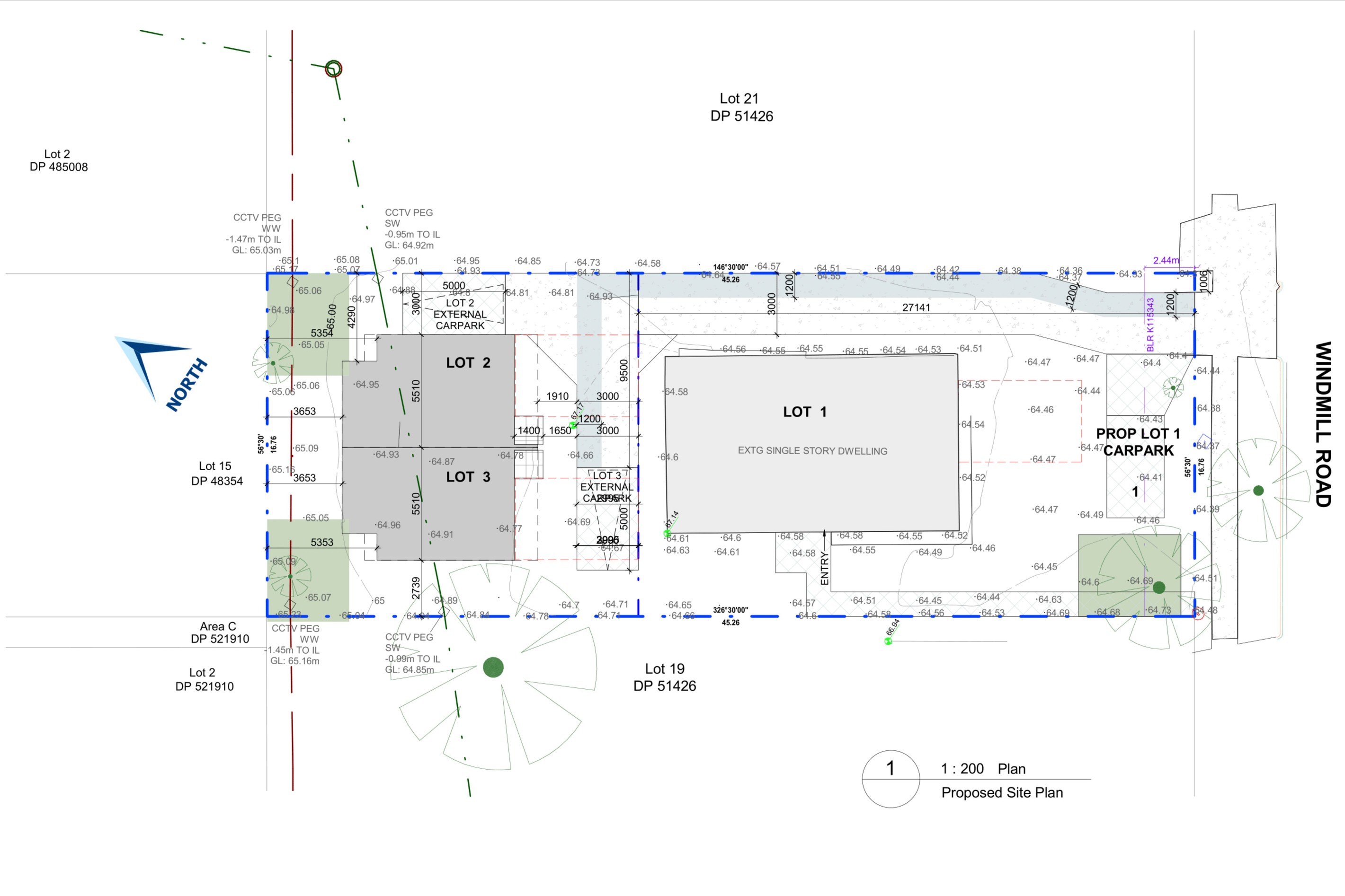
Positioned on a 759m² freehold flat section, this property gives you multiple options. You can renovate the existing home, remove it and start fresh, or explore development opportunities (subject to council approval). With a generous section size, all services already on site, and no flooding (according to council information), this property is a rare find, not for its current look, but by the options it provides.
The existing home is built with solid materials and offers a practical floor plan, including a study room at the rear that you could use as a home office, hobby space, or additional living area. At the rear of the section is a double external garage, ideal for parking, storage, or a workshop. You also have 5 plus off-street parking spaces for your vehicles or visiting friends and family.
The location makes life easy. You are close to Pukekohe town centre, local schools, shops, cafes, and transport links. The area has a well-established community, combining convenience with lifestyle benefits.
Key Features:
• 759m² freehold section
• Flat section with services on site (according to council information)
• 92m² floor area
• Road frontage
• 5 plus off-street parking
• Double external garage
• Renovation potential
• Development potential (subject to council approval)
• Close to Pukekohe town centre, schools, shops, and transport
With so much space and potential, this property is perfect for you whether you want to renovate, start fresh on a bare section, or develop.
Contact us via call, text, or email for more information or to schedule an inspection, or we will see you at the advertised open home.
Sanjay Karan - 021 345 211
Nicholas Singh - 022 045 4883
Disclaimer - This property is being sold by auction or without a price and therefore a price guide
can not be provided. The website may have filtered the property into a price bracket for website functionality purposes. All prospective purchasers shall complete their own due diligence, seek legal and expert advice, and satisfy themselves with respect to information supplied during the marketing of this property, including but not limited to: the floor and land sizes, boundary lines, underground services, along with any scheme plans or consents.
- Electric Hot Water
- Standard Kitchen
- Combined Dining/Kitchen
- Separate WC/s
- Separate Bathroom/s
- Combined Lounge/Dining
- Electric Stove
- Fair Interior Condition
- Double Garage
- Fully Fenced
- Fair Exterior Condition
- Easterly Aspect
- Urban Views
- City Sewage
- Town Water
- Street Frontage
- Level With Road
- Shops Nearby
- In Street Gas
- Public Transport Nearby
See all features
- Light Fittings
- Stove
MKU47068
92m²
759m² / 0.19 acres
2 garage spaces
2
1
Additional Information:
More InfoAgents
- Loading...
- Loading...
